发布时间:2014-02-25 共2页
2007年监理工程师执业资格考试《三控》真题及答案
一、单项选择题(共80题,每题1分。每题的备选项中,只有1个最符合题意)
1. 工程建设活动中,形成工程实体质量的决定性环节是( )阶段。
A. 工程设计 B. 工程施工
C. 工程决策 D. 工程竣工验收
2. 工程项目在竣工验收时无法进行工程内在质量的检验,这说明工程质量具有( )特点。
A. 隐蔽性 B. 波动性
C. 影响多样性 D. 影响复杂性
3. 工程质量控制应该是积极主动地对影响质量的各种因素加以控制,也就是在工程质量控制中应坚持( )的原则。
A. 以预防为主 B. 以人为核心
C. 质量第一 D. 质量标准
4. 施工图审查机构对建设项目施工图进行审查后,应将技术性审查报告提交给( )。
A. 建设单位 B. 监理单位
C. 建设行政主管部门 D. 工程质量监督机构
5. 工程设计质量是工程质量的关键环节之一,设计质量首先应满足( )。
A. 业主所需的功能和使用价值 B. 工程质量监督机构的要求
C. 承包单位施工组织的要求 D. 监理单位监理规划的要求
6. 在实施勘察工作之前,监理工程师应审核勘察单位编制的( )。
A. 勘察规划 B. 勘察方案
C. 勘察管理文件 D. 勘察工作责任制
7. 监理单位对施工图纸的审核主要由( )负责组织。
A. 项目技术负责人 B. 监理单位技术负责人
C. 总监理工程师 D. 专业监理工程师
8. 图纸会审的内容一般不包括( )。
A. 设计地震烈度是否符合当地要求 B. 防火、消防是否满足要求
C. 建筑材料来源有无保证 D. 图纸是否符合监理规划所提要求
9. 凡由承包单位负责采购的原材料、半成品和构配件,在采购订货前应向( )申报。
A. 建设单位现场代表 B. 项目技术负责人
C. 监理工程师 D. 项目经理
10. 为了确保工程质量,施工单位必须建立完善的自检体系,自检体系中可不包括( )。
A. 自检 B. 抽检
C. 交接检 D. 专检
11. 施工过程中见证取样的试验室应是( )。
A. 施工单位的试验室
B. 建设单位指定的试验室
C. 监理单位指定的试验室
D. 与承包单位没有隶属关系的第三方试验室
12. 总监理工程师在施工过程中必须下达停工令的情况为( )。
A. 未经技术资质审查的施工人员进行现场施工
B. 采用未经审查认可的代用材料
C. 施工中出现质量缺陷的异常情况
D. 承包单位未经许可擅自施工
13. 施工承包单位的资质等级中,油漆、架线等作业劳务分包企业的资质( )。
A. 分为一、二级 B. 分为一、二级和临时级
C. 分为一、二、三级 D. 不分级
14. 监理工程师对施工单位现场计量操作质量控制的主要内容是( )。
A. 对施工过程中使用的计量仪器检测设备的质量控制
B. 对从事计量作业人员技术水平资格的审核
C. 检查作业者的操作方法是否得当
D. 检查现场检测的原始记录是否可靠
15. 工程项目竣工验收时,需提出“工程质量评估报告”,该报告应由( )提出。
A. 建设单位 B. 施工单位
C. 质量监督站 D. 项目监理机构
16. 施工过程中,监理工程师对施工现场监督检查的方式不包括( )。
A. 旁站 B. 专检
C. 平行检验 D. 巡视
17. 为确保设备质量,需做好设备检查验收的质量控制,对于重要的关键性大型设备,应由鉴定小组进行检验,鉴定小组的组织者为( )。
A. 监理单位 B. 建设单位
C. 安装单位 D. 供货厂商
18. 设备安装检验合格后,经确认满足设备试运行条件,设备安装单位可进行设备试运行,试运行应由( )批准。
A. 专业监理工程师 B. 安装单位项目负责人
C. 设备供应商 D. 总监理工程师
19. 在制定检验批的抽样方案时,应考虑合理分配生产方风险和使用方风险,对于主控项目两类风险的合理控制范围是( )。
A. α<5%,β<5% B.α<5%,β<10%
C. α<1%,β<5% D.α<1%,β<10%
20. 隐蔽工程验收时,质量验收记录中的验收结论应由( )签字。
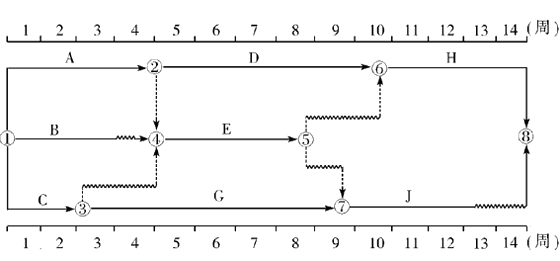
A. 施工单位质检员 B. 施工单位技术负责人
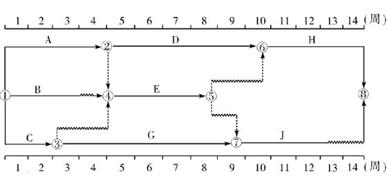
C. 专业监理工程师 D. 质量监督站监督员
21. 施工过程中,检验批的验收应由( )组织。
A. 项目技术负责人 B. 建设单位现场代表
C. 项目经理 D. 专业监理工工程师
22. 工程竣工验收过程中,参加验收各方对工程质量验收意见不一致时,应( )。
A. 由建设单位最终裁定
B. 由建设单位、监理单位协调处理
C. 请当地建设行政主管部门或工程质量监督机构协调处理
D. 由建设单位、工程质量监督机构协调处理
23. 严重影响使用功能或工程结构安全,存在重大质量隐患的工程质量事故属于( )。
A. 一般质量事故 B. 严重质量事故
C. 重大质量事故 D. 特别重大质量事故
24. 施工过程中,若出现需返工弥补的工程质量问题,监理工程师应及时( )。
A. 签发监理通知 B. 签发工程暂停令
C. 通知建设单位 D. 报告政府主管部门
25. 工程质量事故应按有关程序和规定处理,严重质量事故的归口管理部门是( )。
A. 工程质量监督机构 B. 国家建设行政主管部门
C. 省级建设行政主管部门 D. 市、县级建设行政主管部门
26. 为了确保工程质量事故的处理效果,凡涉及结构承载力等使用安全和其他重要性能的处理结果,通常还需要( )。
A. 请专家论证 B. 进行定期观测
C. 做必要的试验和鉴定工作 D. 请工程质量监督机构认可
27. 在常用的工程质量控制的统计方法中,可以用来系统整理分析某个质量问题及其产生原因之间关系的方法是( )。
A. 相关图法 B. 树枝图法
C. 排列图法 D. 直方图法
28. 在下列事件中,可引起质量波动的偶然性原因是( )。
A. 设计计算允许误差 B. 材料规格品种使用错误
C. 施工方法不当 D. 机械设备出现故障
29. 施工过程中,使用控制图分析生产过程是否处于受控状态时,常采用( )的方法收集数据。
A. 单纯随机抽样 B. 等距抽样
C. 多次抽样 D. 整群抽样
30. 表述质量管理体系并规定质量管理体系术语的质量管理体系标准是( )。
A. GB/T19000-2000 B. GB/T19001-2000
C. GB/T19004-2000 D. ISO19011
31. 建立质量管理体系首先要明确企业的质量方针,质量方针是组织的最高管理者正式发布的该组织总的( )。
A. 质量要求 B. 质量水平
C. 质量宗旨和方向 D. 质量策划
32. “持续改进”是质量管理体系八项质量管理原则之一,其作用是为了提高质量管理体系的( )。
A. 有效性和效率 B. 科学性
C. 管理水平 D. 创造价值能力
33. 生产性建设工程总投资包括( )两部分。
A. 建设投资和流动资金 B. 建设投资和铺底流动资金
C. 静态投资和动态投资 D. 固定资产投资和无形资产投资
34. 世界银行和国际咨询工程师联合会对项目的总建设成本做了统一规定,内容包括项目直接建设成本、间接建设成本及( )。
A. 未明确项目的准备金和建设成本上升费用
B. 基本预备费和涨价预备费
C. 应急费和建设成本上升费用
D. 未明确项目的准备金和不可预见准备金
35. 国产非标准设备原价的确定可采用( )等方法。
A. 成本计算估价法和系列设备插入估价法
B. 成本计算估价法和概算指标法
C. 分部组合估价法和百分比法
D. 概算指标法和定额估价法
36. 城市维护建设税的计税基础是( )。
A. 直接费 B. 间接费
C. 所得税 D. 营业税
37. 某当年完工的工程项目,建筑安装工程费2000万元,设备工器具购置费3000万元,工程建设其它费600万元,涨价预备费率为3%,建设期贷款利息180万元,铺底流动资金160万元,则该项目的建设投资为( )万元。
A. 5930 B. 5948
C. 6090 D. 6108
38. 某施工企业为了提高混凝土强度并加快模板的周转速度,在混凝土中加入了经试验后满足上述要求的一种外加剂。该外加剂的费用属于( )。
A. 措施费 B. 材料费
C. 检验试验费 D. 研究试验费
39. 建设工程定额反映了( )水平。
A. 企业管理 B. 消耗量的价值
C. 社会平均消耗 D. 社会平均先进消耗
40. 由业主提供的材料数量及相应的价格,应填入( )中。
A. 分部分项工程量清单 B. 措施项目清单
C. 其它项目清单 D. 零量工作项目表
41. 在计算措施项目综合单价时,对于夜间施工费、二次搬运费等,一般按( )计价。
A. 分包法 B. 实物量法
C. 概算法 D. 参数法
42. 《建设工程工程量清单计价规范》中采用的综合单价为( )。
A. 全费用综合单价 B. 不完全费用综合单价
C. 工料综合单价 D. 实物量综合单价
43. 《建设工程工程量清单计价规范》附录表中的“项目名称”是指( )的项目名称。
A. 分项工程 B. 分部工程
C. 单项工程 D. 单位工程
44. 可行性研究工作小组成立以后,正式开展市场调查之前要进行的工作是( )。
A. 签订委托协议 B. 方案编制与优化
C. 制订工作计划 D. 项目评价
45. 某企业从银行贷款100万元,期限一年,年利率12%,按月计息,到期一次性偿还的本息总额为( )万元。
A. 112. 00 B. 112. 68
C. 132. 47 D. 152. 19
46. 用于项目财务生存能力分析的指标是( )。
A. 项目投资财务净现值 B. 投资各方财务内部收益率
C. 项目偿债备付率 D. 项目净现金流量
47. 某项目前五年累计财务净现值为50万元,第6、7、8年年末净现金流量分别为40、40、30万元,若基准收益率为8%,则该项目8年内累计财务净现值为( )万元。
A. 114. 75 B. 134. 39
C. 145. 15 D. 160. 00
48. 初步设计阶段限额设计控制工作的重点是( )。
A. 初步设计方案的比较选择 B. 设计进度的控制
C. 设计概算的编制 D. 设计费用的支付
49. 某产品各功能的功能系数和成本系数如表所示,应列为价值工程优先改进对象的是( )功能。
|
功能 |
F1 |
F2 |
F3 |
F4 |
|
功能系数 |
0.36 |
0.2 |
0.25 |
0.19 |
|
成本系数 |
0.3 |
0.2 |
0.26 |
0.24 |
A. F1 B. F2
C. F3 D. F4
50. 施工图预算审查方法中,审查质量高、效果好但工作量大的是( )。
A. 标准预算审查法 B. 重点审查法
C. 逐项审查法 D. 对比审查法
51. 估算工程量单价合同结算工程价款的主要依据是投标单价和( )。
A. 工程量清单中提供的工程量
B. 承包人投标书中填报的工程量
C. 按合同及设计文件要求实际完成的工程量
D. 工程标底计算所依据的工程量
52. 从支付工程款的时间顺序出发,投标人对土方分项工程和电气设备安装分项工程采用不平衡报价时,应遵循的原则是( )。
A. 土方分项工程单价适当提高,电气安装分项工程单价适当降低
B. 土方分项工程单价适当降低,电气安装分项工程单价适当提高
C. 两者单价均适当提高
D. 两者单价均适当降低
53. 在不影响施工总工期的前提下,有利于业主降低资金成本的工作安排方式是( )。
A. 所有工作均按最早开始时间安排
B. 所有工作均按最迟开始时间安排
C. 早期工作按最早时间安排,后期工作按最迟时间安排
D. 早期工作按最迟时间安排,后期工作按最早时间安排
54. 根据《建设工程施工合同(示范文本)》规定,当发生工程变更,原合同中又没有适用和类似于变更工程的价格时,变更工程的价格应( )。
A. 由承包人和工程师共同提出,经业主批准后执行
B. 由专业监理工程师提出,经业主确认后执行
C. 由业主提山,经承包商同意后执行
D. 由承包入提出,经工程师确认后执行
55. 某合同价为30万元的分项工程采用调值公式法进行动态结算。可调值部分占合同总价的70%,可调值部分由A、B、C三项成本要素构成,分别占可调值部分的20%、40%、40%,基准日期价格指数均为100,结算依据的价格指数分别为110、95、103,则结算的价款为( )万元。
A. 24. 18 B. 30. 25
C. 33. 18 D. 34. 52
56. 新增固定资产价值的计算是以( )为对象的。
A. 分项工程 B. 分部工程
C. 单位工程 D. 单项工程
57. 监理单位接受建设单位委托对工程项目实施全过程监理时,需要在设计准备阶段( )。
A. 编制工程项目设计出图计划
B. 进行环境及施工现场条件的调查和分析
B. 审查工程项目建设总进度计划
D. 进行工程项目工期目标的论证和决策
58. 对工程项目从开始建设至竣工投产进行统一部署的工程项目建设总进度计划,其内容包括( )。
A. 施工图设计工作进度计划表 B. 年度建设资金平衡表
C. 工程项目进度平衡表 D. 分部分项工程施工进度计划表
59. 横道图作为建设工程进度计划的直观表示方法,其主要优点是能够( )。
A. 明确表达工作之间的逻辑关系
B. 直观表示工作所拥有的机动时间
C. 明确表达影响工期的关键工作
D. 直观表示各项工作的开始和结束时间
60. 建设工程组织流水施工时,用来表达流水施工在空间布置方面的状态参数是( )。
A. 施工段 B. 流水强度
C. 流水节拍 D. 施工过程
61. 建设工程组织流水施工时,相邻两个专业工作队相继开始施工的最小间隔时间称为( )。
A. 间歇时间 B. 流水步距
C. 流水节拍 D. 提前插入时间
62. 某分部工程有4个施工过程,各分为3个施工段组织加快的成倍节拍流水施工。各施工过程在各施工段上的流水节拍分别为6、4、6、4天,则专业工作队数应为( )个。
A. 3 B. 4
C. 6 D. 10
63. 某分部工程有3个施工过程,各分为4个施工段组织流水施工,流水节拍分别为4、3、2、5, 2、5、4、3和4、3、3、4天,则3个施工过程之间的流水步距分别为( )天。
A. 5和4 B. 5和3
C. 4和2 D. 3和4
64. 某工程双代号网络计划如下图所示,其关键线路有( )条。

A. 1 B. 2
C. 3 D. 4
65. 当双代号网络计划的计算工期等于计划工期时,以关键节点为完成节点的工作的( )。
A. 总时差最小 B. 自由时差为零
C. 自由时差等于总时差 D. 时间间隔最小
66. 在工程网络计划中,关键线路是指( )的线路。
A. 单代号网络计划中时间间隔全部为零
B. 单代号搭接网络计划中时距总和最大
C. 双代号网络计划中由关键节点组成
D. 双代号时标网络计划中无虚箭线
67. 某工程双代号时标网络计划如下图所示,其中工作B的总时差和自由时差( )。
.gif)
A. 均为1周 B. 分别为3周和1周
C. 均为3周 D. 分别为4周和3周
68. 在下图所示双代号时标网络计划中,如果C、E、H三项工作因共用一台施工机械而必须顺序施工,则该施工机械在现场的最小闲置时间为( )周。
.gif)
A. 4 B. 3
C. 2 D. 1
69. 工程网络计划的工期优化是通过( )。
A. 改变关键工作间的逻辑关系而使计算工期满足要求工期
B. 改变关键工作间的逻辑关系而使计划工期满足要求工期
C. 压缩关键工作的持续时间而使要求工期满足计划工期
D. 压缩关键工作的持续时间而使计算工期满足要求工期
70. 工程网络计划的费用优化是指寻求( )的过程。
A. 工期固定条件下最低工程总成本
B. 资源有限条件下最低工程总成本
B. 工程总成本最低时的工期安排
D. 工程总成本最低时资源均衡使用
71. 某工程单代号搭接网络计划如下图所示,节点中下方数字为该工作的持续时间,其中关键工作是( )。
.gif)
A. 工作A和工作B B. 工作C和工作D
C. 工作B和工作E D. 工作C和工作E
72. 在建设工程进度调整的系统过程中,采取措施调整进度计划时,应当以( )为依据。
A. 本工作及后续工作的总时差 B. 本工作及后续工作的自由时差
C. 非关键工作所拥有的机动时间 D. 总工期和后续工作的限制条件
73. 当利用S曲线比较实际进度与计划进度时,如果检查日期实际进展点落在计划S曲线的右侧,则该实际进展点与计划S曲线在横坐标方向的距离表示工程项目( )。
A. 实际进度超前的时间 B. 实际进度拖后的时间
C. 实际超额完成的任务量 D. 实际拖欠的任务量
74. 下列关于某项工作进度偏差对后续工作及总工期的影响的说法中,正确的是( )。
A. 工作的进度偏差大于该工作的总时差时,则此进度偏差只影响后续工作
B. 工作的进度偏差大于该工作的总时差时,则此进度偏差只影响总工期
C. 工作的进度偏差未超过该工作的自由时差时,则此进度偏差不影响后续工作
D. 非关键工作出现进度偏差时,则此进度偏差不会影响后续工作
75. 监理单位接受建设单位委托进行工程设计监理时,为了有效地控制设计工作进度,应当( )。
A. 编制工程设计作业进度计划
B. 审查设计进度计划的合理性和可行性
C. 检查工程设计人员的专业构成情况
D. 编制工程设计阶段进度计划
76. 在建设工程施工阶段,监理工程师控制施工进度的工作内容包括( )。
A. 编制施工进度控制工作细则
B. 编制施工准备工作计划
B. 协助承包单位确定工程延期时间
D. 及时支付工程进度款
77. 某项工作是由三个同类性质的分项工程合并而成的,各分项工程的工程量Qi和产量定额Si分别是:Q1=240m3,S1=30m3/工日;Q2=360m3,S2=60m3/工日;Q3=720m3,S3=80m3/工日。其综合时间定额为( )工日/m3.
A. 0. 013 B. 0. 015
C. 0. 017 D. 0. 020
78. 在建设工程施工过程中,为了加快施工进度,可采取的组织措施包括( )。
A. 改进施工工艺 B. 采用更先进的施工机械
C. 增加每天的施工时间 D. 改善劳动条件
79. 根据工程延期的审批程序,当工程延期事件发生后,承包单位首先应在合同规定的有效期内向监理工程师提交( )。
A. 详细的工程延期申述报告 B. 工程延期意向通知
C. 工程延期理由及依据 D. 准确的工程延期时间
80. 监理工程师控制物资供应进度的工作内容包括( )。
A. 确定物资供应分包方式 B. 确定物资供应中标单位
C. 办理物资运输有关手续 D. 组织编制物资供应招标文件
二、多项选择题(共40题,每题2分。每题的备选项中,有2个或2个以上符合题意,至少有1个错项。错选,本题不得分;少选,所选的每个选项得0. 5分)
81. 国家实行建设工程质量监督管理制度,工程质量监督机构的主要任务包括( )。
A. 受理委托方建设工程项目的质量监督
B. 会同监理单位检查施工承包单位的质量行为
C. 对涉及安全的关键部位进行现场实地抽查
D. 向委托部门报送工程质量监督报告
E. 会同工程建设各方进行工程质量验收
82. 下列关于参与工程建设各方质量责任或质量职责的说法,正确的有( )。
A. 监理单位在开工前,负责办理工程质量监督手续
B. 建设单位对按合同约定采购的建筑材料负质量责任
C. 由于监理单位的原因造成的施工质量责任由监理单位负责
D. 施工单位必须按图纸和施工技术规范标准组织施工
E. 勘察设计单位对所编制的勘察设计文件的质量负责
83. 监理工程师对勘察现场作业的质量进行控制时,应重点检查( )。
A. 勘察实施方案的可行性 B. 原始资料取样的方法、手段
C. 工程勘察报告的有效性 D. 原始记录表格的填写、签字
E. 项目负责人在现场的工作情况
84. 监理工程师对初步设计质量审核的主要内容包括( )。
A. 结构设计的安全可靠性 B. 有关部门的审批意见和设计要求
C. 技术参数的先进合理性 D. 工艺流程的先进合理性
E. 建筑造型与立面设计
85. 施工过程中发现施工作业活动存在重大隐患,可能造成质量事故,必须立即停工时,( )有权下达停工令。
A. 专业监理工程师 B. 施工单位项目经理
C. 总监理工程师 D. 建设单位现场代表
E. 工程质量监督机构
86. 承包单位应做好技术交底,关键部位技术交底书的内容包括( )。
A. 施工方法 B. 施工方案
C. 施工过程中需注意的问题 D. 质量要求和验收标准
E. 可能出现意外事件的措施及应急方案
87. 监理工程师对施工过程的质量控制是指对( )的控制。
A. 实际投入的生产要素质量 B. 作业技术活动实施状态
C. 作业技术活动实施结果 D. 竣工验收
E. 最终产品的质量
88. 监理工程师审查总承包单位提交的《分包单位资质报审表》时,主要审查的内容应包括( )。
A. 施工承包合同是否允许分包
B. 分包单位基本情况
C. 分包的范围和工程部位是否可进行分包
D. 分包协议草案
E. 分包单位完成分包工程任务的能力
89. 设备安装经检验合格后,还必须进行试车。设备试车时,试运行应坚持的步骤有( )。
A. 先无负荷后有负荷
B. 先从动系统后主动系统
B. 先部件后组件,再单机、机组
D. 先高速后降至低速运转
E. 先手控、遥控、最后自控运转
90. 在竣工验收时,对某些剩余工程和缺陷工程,在不影响交付的前提下,经( )共同协商,施工单位可在竣工验收后的限定时间内完成。
A. 建设单位 B. 设计单位
C. 施工单位 D. 工程质量监督机构
E. 监理单位
94. 建筑工程施工验收统一标准中,要求施工现场质量管理应有( )。
A. 完善的检测手段 B. 相应的施工技术标准
C. 施工质量检验制度 D. 健全的质量管理体系
E. 综合施工质量水平评价考核制度
92. 建设程序是工程项目建设过程及客观规律的反映,不按建设程序办事是导致工程质量问题的重要原因,常见的违背建设程序的事件包括( )。
A. 边设计边施工 B. 无图施工
C. 无证施工 D. 越级施工
E. 技术交底不清
93. 工程质量事故具有复杂性的特点,这是由于建筑生产的特点造成的。工程质量事故的复杂性包括( )。
A. 建筑生产质量通病多 B. 建筑生产具有流动性
C. 建筑生产露天作业多 D. 建筑生产工种多、专业多
E. 建筑生产质量状态不稳定
94. 工程质量事故处理完成后,监理工程师在施工单位自检合格报验的基础上,应( )进行验收。
A. 严格按施工验收标准及有关规范
B. 结合监理人员的旁站、巡视、平行检验结果
C. 依据质量事故调查报告的结果
D. 依据质量事故技术处理方案的要求
E. 通过实际量测、检查各种资料数据
95. 控制图法是工程质量控制的统计分析方法之一,其用途包括( )。
A. 过程控制 B. 评价过程能力
C. 找出薄弱环节 D. 掌握质量分布规律
E. 过程分析
96. ISO9000质量管理体系中,质量管理原则之一是要求以顾客为关注焦点,这里的顾客是指( )。
A. 所有个人或组织 B. 消费者
C. 最终使用者 D. 采购方
E. 零售商
97. 项目监理机构在建设工程投资控制中的主要任务包括( )。
A. 对拟建项目进行市场调查和预测
B. 编制投资估算
B. 编制与审查设计概算
D. 评标定标
E. 协助业主与承包商签订承包合同
98. 进口设备的CIF价包括了设备的( )。
A. 货价 B. 运杂费
C. 国外运输费 D. 关税
E. 国外运输保险费
99. 建筑安装工程税金包括国家税法规定应计入建筑安装工程造价的( )。
A. 增值税 B. 所得税
C. 营业税 D. 城市维护建设税
E. 教育费附加
100. 按建设工程特点分类,定额可分为( )。
A. 企业定额 B. 预算定额
C. 建筑工程定额 D. 安装工程定额
E. 直接费定额
101. 在工程量清单计价中,如按分部分项工程单价组成来分,工程量清单报价的形式有( )。
A. 工料单价法 B. 综合单价法
C. 实物单价法 D. 全费用综合单价法
E. 闭口单价法
102. 建设投资估算方法包括( )。
A. 生产能力指数法 B. 分项详细估算法
C. 扩大指标估算法 D. 综合指标投资估算法
E. 比例估算法
103. 建设项目环境影响评价工作内容包括( )。
A. 调查研究环境条件 B. 识别和分析项目影响环境的因素
C. 提出治理和保护环境的措施 D. 比选和优化环境保护方案
E. 组织验收环保设施
104. 强制确定法可用于价值工程活动中的( )。
A. 对象选择 B. 功能评价
C. 功能定义 D. 方案创新
E. 方案评价
105. 设备安装工程中,单位工程概算的编制方法包括( )。
A. 生产能力指数法 B. 资金周转率法
C. 预算单价法 D. 扩大单价法
E. 概算指标法
106. 当实际工程量与估计工程量没有实质性差别时,工程量变动风险由承包方承担的合同形式包括( )。
A. 固定总价合同 B. 纯单价合同
C. 可调总价合同 D. 成本加固定金额酬金合同
E. 成本加固定百分比酬金合同
107. 工程计量的依据包括( )。
A. 质量合格证书 B. 承包商填报的工程款支付申请
C. 工程量清单前言 D. 技术规范中的“计量支付”条款
E. 设计图纸
108. 在下列材料费用中,承包商可以获得业主补偿的包括( )。
A. 由于索赔事项材料实际用量超过计划用量而增加的材料费用
B. 由于客观原因材料价格大幅度上涨而增加的材料费用
C. 由于非承包商责任工程延误导致的材料价格上涨而增加的材料费用
D. 由于现场承包商仓库被盗而损失的材料费用
E. 承包商为保证混凝土质量选用高标号水泥而增加的材料费用
109. 为了确保建设工程进度控制目标的实现,可采取的合同措施包括( )。
A. 推行CM承发包模式 B. 对工期提前给予奖励
C. 建立进度信息沟通网络 D. 公正地处理工程索赔
E. 建立进度计划检查分析制度
110. 建设工程平行施工的特点包括( )。
A. 可以充分利用工作面进行施工 B. 单位时间内投入的资源量较少
C. 施工现场的组织管理比较简单 D. 劳动力及施工机具等资源无法均衡使用
E. 各专业工作队能够连续作业
111. 下列关于流水施工的说法中,正确的有( )。
A. 流水步距的大小取决于加入流水的施工过程数
B. 划分施工段的目的就是为了组织流水施工
C. 流水节拍的大小与单位时间的资源供应量有关
D. 施工段的界限应尽可能与建筑结构界限相吻合
E. 流水施工工期就是整个建设工程的总工期
112. 某分部工程双代号网络图如下所示,图中错误有( )。
.gif)
A. 多个起点节点 B. 多个终点节点
C. 工作代号重复 D. 存在循环回路
E. 节点编号有误
113. 某工程双代号网络计划中各节点的最早时间与最迟时间如下图所示,该计划表明( )。
.gif)
A. 工作1-3的自由时差为1 B. 工作4-5为关键工作
C. 工作4-6为关键工作 D. 工作5-8的总时差为零
E. 工作7-8的自由时差为2
114. 在工程网络计划中,关键工作是指( )的工作。
A. 单代号网络计划中最迟完成时间与最早完成时间相差最小
B. 双代号时标网络计划中工作箭线上无波形线
C. 单代号搭接网络计划中最迟开始时间与最早开始时间相差最小
D. 双代号网络计划中两端节点均为关键节点
E. 单代号搭接网络计划中与紧后工作之间时距最大
115. 工程网络计划的资源优化是指( )的过程。
A. 在工期保持不变的条件下,使资源强度最小
B. 在满足资源限制条件下,使工程总成本最低
C. 在满足资源限制条件下,使工期延长最少
D. 在工期保持不变的条件下,使资源需用量尽可能均衡
E. 在资源强度保持不变的条件下,使资源需用量最少
116. 某工作计划进度与实际进度如下图所示,从图中可获得的正确信息有( )。

A. 第3天至第4天的实际进度为匀速进展
B. 第8天至第9天的实际进度为匀速进展
C. 实施过程中累计停工为2天
D. 第9天实际完成的工作量与计划工作量相同
E. 第10天结束时该工作已按计划完成
117. 某工程双代号时标网络计划执行到第3周末和第7周末时,检查其实际进度如下图前锋线所示,检查结果表明( )。

A. 第3周末检查时工作B拖后1周,使总工期延长1周
B. 第3周末检查时工作F拖后0. 5周,但不影响总工期
C. 第7周末检查时工作I拖后1周,但不影响总工期
D. 第7周末检查时工作J拖后1周,使总工期延长1周
E. 第7周末检查时工作K提前1周,总工期预计提前3周
118. 为了使施工进度控制目标更具科学性和合理性,在确定施工进度控制目标时应考虑的因素包括( )。
A. 类似工程项目的实际进度
B. 工程实施的难易程度
C. 工程条件的落实情况
D. 施工图设计文件的详细程度
E. 建设总进度目标对施工工期的要求
119. 监理单位所编制的建设工程施工进度控制工作细则的内容包括( )。
A. 工程进度款支付条件及方式 B. 进度控制工作流程
C. 进度控制的方法和措施 D. 进度控制目标实现的风险分析
E. 施工绩效考核评价标准
120. 在建设工程施工阶段,为了减少或避免工程延期事件的发生,监理工程师应( )。
A. 及时提供工程设计图纸 B. 及时提供施工场地
C. 适时下达工程开工令 D. 妥善处理工程延期事件
E. 及时支付工程进度款