2012年造价工程师考试工程造价案例分析考前冲刺(五)

发布时间:2014-02-25 共1页

考前冲刺(五)
一、案例分析题
1.某单位经理室施工图和施工图设计说明如下:
(一)经理室工程施工图设计说明
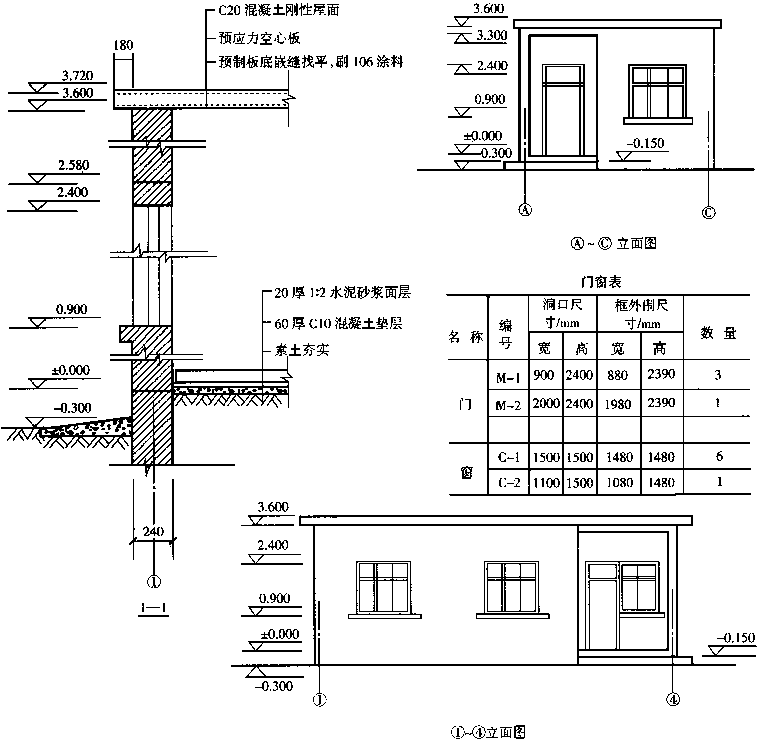
1.结构类型及标高
本工程为砌体结构工程。室内地坪标高±0.000,室外地坪标高-0.300m。
2.基础
M5水泥砂浆砌砖基础,C10混凝土基础垫层200mm厚,位于-0.060m处做20mm厚1:2水泥砂浆防潮层(加水泥质量6%的防水粉)。
3.墙、柱
M5混合砂浆砌砖墙、砖柱。
4.地面
基层素土回填夯实,80mm厚C10混凝土地面垫层,铺400mm×400mm浅色地砖,20mm厚1:2水泥砂浆粘结层。20mm厚1:2水泥砂浆贴瓷砖踢脚线,高150mm。
5.屋面
预制空心屋面板上铺30mm厚1:3水泥砂浆找平层,40mm厚C20混凝土刚性屋面,20mm厚1:2水泥砂浆防水层(加质量分数为6%防水粉)。
6.台阶、散水
C10混凝土基层,15mm厚1:2水泥白石子浆水磨石台阶。60mm厚C10混凝土散水,伸缩缝塞沥青砂浆。
7.墙面、顶棚
内墙:18mm厚1:0.5:2.5混合砂浆底灰,8mm厚1:0.3:3混合砂浆面灰,满刮腻子2遍,刷乳胶漆2遍。
顶棚:12mm厚1:0.5:2.5混合砂浆底灰,5mm厚1:0.3:3混合砂浆面灰,满刮腻子2遍,刷乳胶漆2遍。
外墙面、梁柱面水刷石:15mm厚1:2.5水泥砂浆底灰,10mm厚1:2水泥白石子浆面灰。
8.门、窗
实木装饰门:M-1、M-2洞口尺寸均为900mm×2400mm。
塑钢推拉窗:C-1洞口尺寸1500mm×1500mm,C-2洞口尺寸1100mm×1500mm。
9.现浇构件
圈梁:C20混凝土,钢筋HPB235:φ12,116.80m;φ6.5,122.64m。
矩形梁:C20混凝土,钢筋HRB335:φ14,18.41kg;φ12,9.02kg。HPB235:φ6.5,8.70kg。
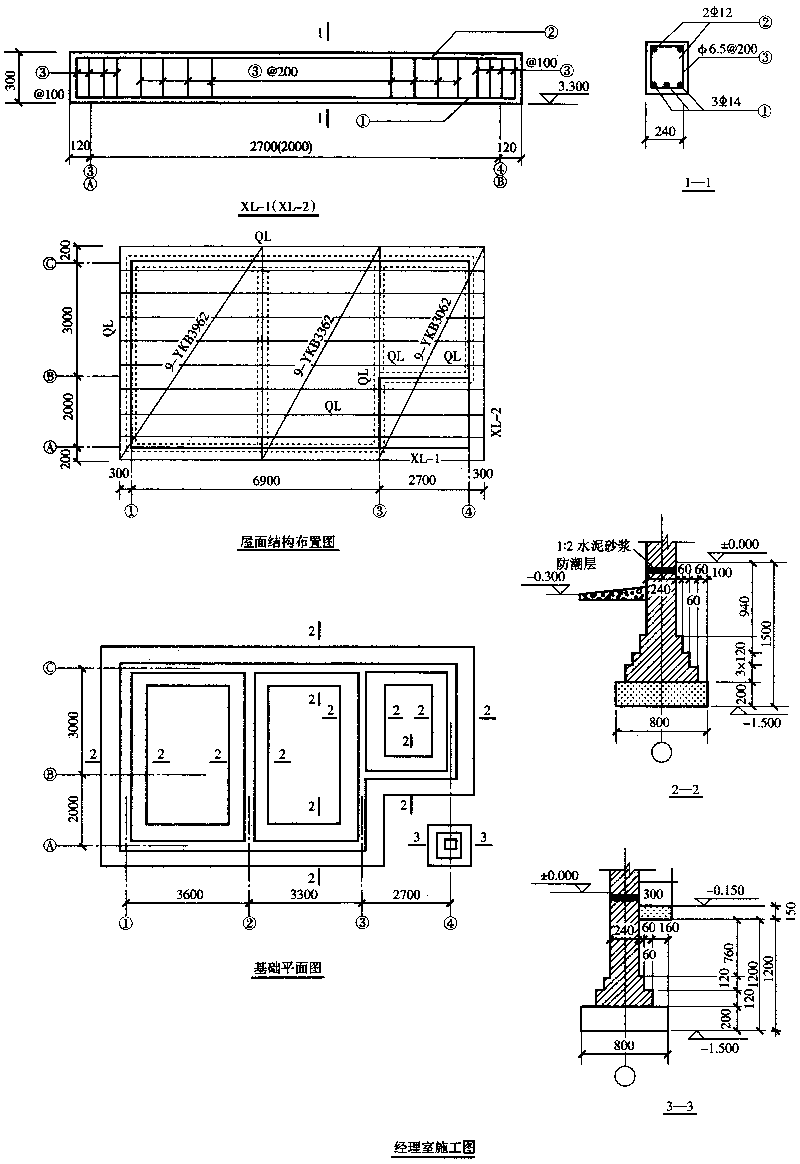
(二)施工图如下图所示
问题
根据《建设工程工程量清单计价规范》完成清单工程量计算见下表。



 
正确答案:
填制完成清单工程量计算表(见下表)。

百分百考试网 考试宝典

立即免费试用