发布时间:2014-02-25 共1页
2005年造价工程师案例分析试题
试题一(20分)
某建设项目计算期10年,其中建设期2年。项目建设投资(不含建设期贷款利息)1200万元,第1年投入500万元,全部为投资方自有资 金;第2年投入700万元,其中500万元为银行贷款,贷款年利率6%。贷款偿还方式为:第3年不还本付息,以第3年末的本息和为基准,从第4年 开始,分4年等额还本、当年还清当年利息。
项目流动资金投资400万元,在第3年和第4年等额投入,其中仅第3年投入的l00万元为投资方自有资金,其余均为银行贷款,贷款年利 率8%,贷款本金在计算期最后一年偿还,当年还清当年利息。
项目第3年的总成本费用(含贷款利息偿还)为900万元,第4年至第10年的总成本费用均为l500万元,其中,第3年至第10年的折旧费均 为l00万元。
项目的投资额、单位产品价格和年经营成本在初始值的基础上分别变动±l0%时对应的财务净现值的计算结果见表l.1.计算结果除答题 纸表1.2保留三位小数外,其余均保留两位小数。
问题
1.计算项目各年的建设投资贷款和流动资金贷款还本付息额,并将计算结果填入答题纸表1.2和表l.3.
2.列式计算项目第3年、第4年和第l0年的经营成本。
3.根据表l.1的数据列式计算各因素的敏感系数,并对3个因素的敏感性进行排序。
.jpg)
4.根据表1.1中的数据绘制单因素敏感性分析图,列式计算并在图中标出单位产品价格变动的临界点。
解析:
问题1
表1.2 项目建设投资贷款还本付息表 单位:万元
|
序号 |
名称 |
2 |
3 |
4 |
5 |
6 |
7 |
|
1 |
年初累计借款 |
|
515.000 |
545.900 |
409.425 |
272.950 |
136.475 |
|
2 |
本年新增借款 |
500 |
|
|
|
|
|
|
3 |
本年应计利息 |
15 |
30.900 |
32.754 |
24.566 |
16.377 |
8.189 |
|
4 |
本年应还本金 |
136.475 |
136.475 |
136.475 |
136.475 |
|
|
|
5 |
本年应还利息 |
32.754 |
24.566 |
16.377 |
8.189 |
|
|
注:表1.2中数据来源:项目建设期贷款利息=1/2×500×6%=l5(万元)
第3年初的累计借款为:500+15=515(万元)
第3年应计利息为:515×6%=30.90(万元)
第4年初的累计借款为:515+30.90=545.90(万元)
第4至第7年的应还本金为:545.90÷4=136.475(万元)
将以上计算结果填入表l.2再计算第4至第7年的应计利息和年初累计借款。
|
序号 |
名称 |
3 |
4 |
5 |
6 |
7 |
8 |
9 |
10 |
|
1 |
年初累计贷款 |
100 |
300 |
300 |
300 |
300 |
300 |
300 |
|
|
2 |
本年新增贷款 |
100 |
200 |
|
|
|
|
|
|
|
3 |
本年应计利息 |
8 |
24 |
24 |
24 |
24 |
24 |
24 |
24 |
|
4 |
本年应还本金 |
|
|
|
|
|
|
|
300 |
|
5 |
本年应还利息 |
8 |
24 |
24 |
24 |
24 |
24 |
24 |
24 |
问题2
第3年的经营成本=900-100-30.9-8=761.1(万元)
第4年的经营成本=1500-100-32.75-24=1343.25(万元)
第l0年的经营成本=1500-100-24=1376(万元)
问题3
投资额:[(1190-1300)/1300]/10%=-0.85
单位产品价格:[(320-1300)/1300]/(-10%)=7.54
年经营成本:[(550-1300)/1300]/l0%=-5.77
敏感性排序:单位产品价格、年经营成本、投资额。
问题4
单位产品价格变动的临界点:-l300×10%/(1300-320)=-l3.27%
单因素敏感性分析图如下:
.jpg)
试题二(20分)
某市为改善越江交通状况,提出以下两个方案。
方案l:在原桥基础上加固、扩建。该方案预计投资40 000万元,建成后可通行20年。这期间每年需维护费1000万元。每l0 年需进行一次大修,每次大修费用为3000万元,运营20年后报废时没有残值。
方案2:拆除原桥,在原址建一座新桥。该方案预计投资l20 000万元,建成后可通行60年。这期间每年需维护费1500万元 。每20年需进行一次大修,每次大修费用为5000万元,运营60年后报废时可回收残值5000万元。
不考虑两方案建设期的差异,基准收益率为6%。
主管部门聘请专家对该桥应具备的功能进行了深入分析,认为从Fl、F2、F3、F4、F5共5个方面对功能进行评价。表2.1是 专家采用0-4评分法对5个功能进行评分的部分结果,表2.2是专家对两个方案的5个功能的评分结果。
表2.1 功能评分表
.jpg)
计算所需系数参见表2.3.
表2.3 计算所需系数
|
n |
10 |
20 |
30 |
40 |
50 |
60 |
|
(P/F,6%,n) |
0.5584 |
0.3118 |
0.174l |
0.0972 |
0.0543 |
0.0303 |
|
(A/P,6%,n) |
0.1359 |
0.0872 |
0.0726 |
0.0665 |
0.0634 |
0.0619 |
问题
1.在答题纸表2.4中计算各功能的权重(权重计算结果保留三位小数)。
2.列式计算两方案的年费用(计算结果保留两位小数)。
3.若采用价值工程方法对两方案进行评价,分别列式计算两方案的成本指数(以年费用为基础)、功能指数和价值指数,并根据计算结 果确定最终应入选的方案(计算结果保留三位小数)。
4.该桥梁未来将通过收取车辆通行费的方式收回投资和维持运营,若预计该桥梁自机动车年通行量不会少于1500万辆,分别列式计算两 方案每辆机动车的平均最低收费额(计算结果保留两位小数)。
解析:
问题1
|
|
F1 |
F2 |
F3 |
F4 |
F5 |
得分 |
权重 |
|
F1 |
/ |
2 |
3 |
4 |
4 |
13 |
0.325 |
|
F2 |
2 |
/ |
3 |
4 |
4 |
13 |
0.325 |
|
F3 |
1 |
l |
/ |
3 |
4 |
9 |
0.225 |
|
F4 |
0 |
0 |
l |
/ |
3 |
4 |
0.100 |
|
F5 |
0 |
0 |
0 |
1 |
/ |
1 |
0.025 |
|
合计 |
40 |
1.000 |
|||||
问题2
方案l的年费用=1000+40 000(A/P,6%,20)+3000(P/F,6%,10)(A/P,6%,20)=1000+40 000×0.087 2+3000×0.558 4×0.087 2=4634.08(万元)
方案2的年费用=1500+120 000(A/P,6%,60)+5000(P/F,6%,20)(A/P,6%,60)+5000(P/F,6%,40)(A/P,6%,60)一5000(P/F,6%,60)(A/P,6%,60)=1500+ 120 000×0.061 9+5000×0.311 8× 0.061 9+5000×0.O97 2×0.061 9-5000×0.030 3×0.061 9=9045.21(万元)
或:
方案1的年费用=1000+[40 000+3000(P/F,6%,l0)](A/P,6%,20)=1000+(40 000+3000×0.558 4)×0.087 2=4634.08(万元)
方案2的年费用=1500+[120 000+5000(P/F,6%,20)+5000(P/F,6%,40)一5000×(P/F,6%,60)]×(A/P,6%,60) =1500+(120 000+5000×0.311 8+5000×0.097 2- 5000×0.030 3)×0.061 9=9045.21(万元)
问题3
方案l的成本指数=4634.08/(4634.08+9045.20)=0.339
方案2的成本指数=9045.20/(4638.08+9045.20)=0.661
方案l的功能得分=6×0.325+7×0.325+6×0.225+9×0.100+9×0.025=6.700
方案2的功能得分=10×0.325+9×0.325+7×0.225+8×0.100+9×0.025=8.775
方案l的功能指数=6.700/(6.700+8.775)=0.433
方案2的功能指数=8.775/(6.700+8.775)=0.567
方案l的价值指数=0.433/0.339=1.277
方案2的价值指数=0.567/0.661=0.858
因为方案1的价值指数大于方案2的价值指数,所以应选择方案1.
问题4
方案l的最低收费=4634.08/1500=3.09(元/辆)
方案2的最低收费=9045.20/1500=6.03(元/辆)
试题三(20分)
某大型工程项目由政府投资建设,业主委托某招标代理公司代理施工招标。招标代理公司确定该项目采用公开招标方式招标,招标公告 在当地政府规定的招标信息网上发布。招标文件中规定:投标担保可采用投标保证金或投标保函方式得保。评标方法采用经评审的最低投标价 法。投标有效期为60天。
业主对招标代理公司提出以下要求:为了避免潜在的投标人过多,项目招标公告只在本市日报上发布,且采用邀请招标方式招标。
项目施工招标信息发布以后,共有l2家潜在的投标人报名参加投标。业主认为报名参加投标的人数太多,为减少评标工作量,要求招标 代理公司仅对报名的潜在投标人的资质条件、业绩进行资格审查。
开标后发现:
(1)A投标人的投标报价为8000万元,为最低投标价,经评审后推荐其为中标候选人;
(2)B投标人在开标后又提交了一份补充说明,提出可以降价5%;
(3)C投标人提交的银行投标保函有效期为70天;
(4)D投标人投标文件的投标函盖有企业及企业法定代表人的印章,但没有加盖项目负责人的印章;
(5)E投标人与其他投标人组成了联合体投标,附有各方资质证书,但没有联合体共同投标协议书;
(6)F投标人投标报价最高,故F投标人在开标后第二天撤回了其投标文件。
经过标书评审,A投标人被确定为中标候选人。发出中标通知书后,招标人和A投标人进行合同谈判,希望A投标人能再压缩工期、降低 费用。经谈判后双方达成一致:不压缩工期,降价3%。
问题
1.业主对招标代理公司提出的要求是否正确?说明理由。
2.分析A、B、C、D、E投标人的投标文件是否有效?说明理由。
3.F投标人的投标文件是否有效?对其撤回投标文件的行为应如何处理?
4.该项目施工合同应该如何签订?合同价格应是多少?
解析:
问题1
(1)“业主提出招标公告只在本市日报上发布”不正确,理由:公开招标项目的招标公告,必须在指定媒介发布,任何单位和个人不 得非法限制招标公告的发布地点和发布范围。
(2)“业主要求采用邀请招标”不正确;理由:因该工程项目由政府投资建设,相关法规规定:“全部使用国有资金投资或者国有资 金投资占控股或者主导地位的项目”,应当采用公开招标方式招标。如果采用邀请招标方式招标,应由有关部门批准。
(3)“业主提出的仅对潜在投标人的资质条件、业绩进行资格审查”不正确;理由:资格审查的内容还应包括:信誉、技术、拟投入 人员、拟投入机械、财务状况等。
问题2
(1)A投标人的投标文件有效。
(2)B投标人的投标文件(或原投标文件)有效。但补充说明无效,因开标后投标人不能变更(或更改)投标文件的实质性内容。
(3)C投标人的投标文件无效。因投标保函的有效期应超过投标有效期30天(或28天)(或在投标有效期满后的30天(或28天)内继续 有效)。
(4)D投标人的投标文件有效。
(5)E投标人的投标文件无效。因为组成联合体投标的,投标文件应附联合体各方共同投标协议书。
问题3
F投标人的投标文件有效。招标人可以没收其投标保证金,给招标人造成损失超过投标保证金的,招标人可以要求其赔偿。
问题4
(1)该项目应自中标通知书发出后30天内按招标文件和A投标人的投标文件签订书面合同,双方不得再签订背离合同实质性内容的其他 协议。
(2)合同价格应为8000万元。
试题四(20分)
某工程施工总承包合同工期为20个月。在工程开工之前,总承包单位向总监理工程师提交了施工总进度计划,各工作均匀进行(如图 4.1所示)。该计划得到总监理工程师的批准。
当工程进行到第7个月末时,进度检查绘出的实际进度前锋线如图4.1所示。
E工作和F工作于第l0个月末完成以后,业主决定对K工作进行设计变更,变更设计图纸于第l3个月末完成。工程进行到第l2个月末时, 进度检查时发现:
(1)H工作刚刚开始;
(2)I工作仅完成了1个月的工作量:
(3)J工作和G工作刚刚完成。
.jpg)
图4.1施工总进度计划图(单位:月)
问题
1.为了保证本工程的建设工期,在施工总进度计划中应重点控制哪些工作?
2.根据第7个月末工程施工进度检查结果,分别分析E、C、D工作的进度情况及对其紧后工作和总工期产生的影响。
3.根据第l2个月末进度检查结果,在答题纸图4.2中绘出进度前锋线。此时总工期为多少个月?
4.由于J,G工作完成后K工作的施工图纸未到,K工作无法在第12个月末开始施工,总承包单位就此向业主提出了费用索赔 。造价工程师应如何处理?说明理由。
解析:
问题1
重点控制的工作为:A、C、F、J、K;因为它们都是关键工作。
问题2
(1)E工作拖后2个月,影响H、I、J工作的最早开始时间,且影响总工期1个月。
(2)C工作实际进度与计划进度一致,不影响F、G的最早开始时间,不影响总工期。
(3)D工作拖后l个月,影响G工作的最早开始时间,但不影响总工期。
问题3
此时总工期为l9个月(如图4.2)。
问题4
不予批准,理由:K工作设计变更图纸于第l3个月末完成,对总监理工程师批准的进度计划并未造成影响,故不予批准。
.jpg)
试题五(20分)
某工程按最早开始时间安排的横道图计划如图5.1,其中虚线上方数字为该工作每月的计划投资额(单位:万元)。该工程 施工合同规定工程于1月1日开工,按季度综合调价系数调价。在实施过程中,各工作的实际工程量和持续时间均与计划相同。
.jpg)
问题
1.在施工过程中,工作A、C、E按计划实施(如图5.1中的实线横道所示),工作曰推迟1个月开始,导致工作D、F的开始时 间相应推迟1个月。在答题纸图5.2中完成B、I D、F工作的实际进度的横道图。
2.若前三个季度的综合调价系数分别为1.00、1.05和1.10,计算第2至第7个月的已完工程实际投资,并将结果填入答题纸 表5.1. 3.第2至第7个月的已完工程计划投资各为多少?将结果填入答题纸表5.1. 4.列式计算第7个月末的投资偏差和以投资额、时间分别表示 的进度偏差(计算结果保留两位小数)。
解析:
问题1
由于工作B、D、F的开始时间均推迟l个月,而持续时间不变,故实际进度B工作在3~5月、D工作在6~11日、F工柞在12~13 月。用实线横道标在图5.2中。
.jpg)
问题2
第1季度的实际投资与计划投资相同,将第2季度3个月的计划投资乘以1.05,将7月份的计划投资乘以1.10,得到2至7月各 月的实际投资(可标在图5.2实线横道上方),然后逐月累计,将计算结果填入表5.1中。
.jpg)
问题3
将各月已完工程实际投资改为计划投资(即不乘调价系数),然后逐月累计,将计算结果填入表5.1中。
问题4
投资偏差=已完工程实际投资一已完工程计划投资=2675-2580=95(万元),即投资增加95万元以投资额表示的进度偏差=拟完工程计划投资一已完工程计划投资=2740一2580= 160(万元),即进度拖后l60万元以时间表示的进度偏差=已完工程实际时间一已完工程计 划时间=7一[6+(2580- 2440)/(2740-2440)]=0.53(月),即进度拖后0.53月。
试题六(20分)
本试题分三个专业(Ⅰ.土建工程、Ⅱ.管道安装工程、Ⅲ.电气安装工程),请任选其中一题作答。若选做多题,按所答的第一题(卷面顺序)计分。
1.土建工程
某经理室装修工程如图6.I所示。间壁轻隔墙厚120mm,承重墙厚240mm.经理室内装修做法详见答题纸表6.I.1“项目名称” 中所列的内容。踢脚、墙面门口侧边的工程量不计算,柱面与墙踢脚做法相同,柱装饰面层厚度50mmm.消耗量定额是按《建设工程工程量清单 计价规范》的计算规则编制的。


问题
1.根据图6.工所示内容和答题纸表6.I.1“分部分项工程量清单”所列项目,依据《建设工程工程量清单计价规范》附录B 的计算规则,计算经理室内装修工程量。范围包括:A、C两个立面、柱面(Z1、Z2、Z3)、地面、踢脚线、天棚。将相应的计量单位、计算式 及计算结果填入答题纸表6.I.1“分部分项工程量清单”的相应栏目中。
2.根据答题纸表6.I.1所列经理室内装修做法,以及《××装饰工程消耗量定额》
(节选)的消耗量、预算价格,按《建设工程工程量清单计价规范》中综合单价的内容要求,编制答题纸表6.I.2“分部分 项工程量清单综合单价分析表”。管理费按人工费的70%、利润按人工费的50%计算。
(计算结果均保留两位小数)
《××装饰工程消耗量定额》(节选)
工作内容:
1.块料楼地面:清理基层、找平层、面层、灌缝擦缝、清理净面等过程。
2.木质踢脚线:清理基层、安装基层、面层、钉木线、打磨净面、油漆等过程。
3.柱(梁)饰面:木龙骨制安、粘钉基层、刷防火漆、钉面层等过程。
4.天棚吊顶:吊件加工安装、轻钢龙骨安装、整体调整等过程。
计量单位:m2

《××装饰工程消耗量定额》(节选)
工作内容:
1.石膏板天棚:安装面层等过程。
2.木材面清漆:磨砂纸、润油粉、刮腻子、油色、清漆四遍、磨退出亮等过程。
3.乳胶漆:填补裂缝、满刮腻子两遍、磨砂纸、刷乳胶漆等过程。
4.墙纸裱糊:刮腻子、打磨、刷胶、裱糊等过程。

|
序号 |
名 称 |
单位 |
预算价格(元) |
|
1 |
综合人工 |
工日 |
35.00 |
|
2 |
水泥32.5 |
t |
250.00 |
|
3 |
中(粗)砂 |
m3 |
90.00 |
|
4 |
地板砖(800×800)优质品(东鹏牌) |
m2 |
120.00 |
|
5 |
白水泥 |
t |
420.00 |
|
6 |
红榉装饰板 |
m2 |
22.50 |
|
7 |
胶合板(9mm) |
m2 |
17.60 |
|
8 |
装饰木条(6×19) |
m |
0.80 |
|
9 |
一等木方 |
m3 |
1250.00 |
|
10 |
装配式轻钢龙骨(综合)(龙牌) |
m2 |
26.00 |
|
1l |
石膏板 |
m2 |
16.00 |
|
12 |
墙纸(玉兰牌) |
m2 |
15.00 |

问题2
表6.Ⅰ.2 分部分项工程量清单综合单价分析表(15分)
|
序号 |
项目编码 |
项目名称 |
工作内容 |
综合单价组成 |
综合单价 |
||||
|
人工费 |
材料费 |
机械费 |
管理费 |
利润 |
|||||
|
1 |
020102002001 |
块料楼地面 |
略 |
10.57 |
129.11 |
0.40 |
7.40 |
5.30 |
152.78 |
|
2 |
020105006001 |
木质踢脚线 |
略 |
13.65 |
81.11 |
1.77 |
9.56 |
6.83 |
112.92 |
|
3 |
020208001001 |
柱面装饰 |
略 |
37.45 |
69.28 |
0.04 |
26.22 |
18.73 |
151.72 |
|
4 |
020302001001 |
天棚吊顶 |
略 |
12.60 |
52.25 |
0 |
8.82 |
6.30 |
79.97 |
|
5 |
02050900100l |
墙纸裱糊 |
略 |
6.30 |
19.33 |
0 |
4.41 |
3.15 |
33.19 |
Ⅱ.管道安装工程
某化工厂内新建办公试验楼集中空调通风系统安装工程,如图6.Ⅱ所示。
有关条件如下:
1.该工程分部分项工程量清单项目的统一编码见表6.Ⅱ.1:
表6.Ⅱ.1 分部分项工程量清单项目的统一编码
|
项目编码 |
项目名称 |
项目编码 |
项目名称 |
|
030901004 |
空调器 |
030902001 |
碳钢通风管道 |
|
030903001 |
碳钢调节阀 |
030903007 |
碳钢送风口、散流器 |
|
030904001 |
通风工程检测、调试 |
|
|

注:(1)每10m2通风管道制安工程量耗用11.38m2镀锌钢板;
(2)每10m2通风管道制安中,风管、法兰、加固框、吊托支架耗用钢材52.00kg,其中施工损耗为4%;
(3)每100kg风管、法兰、加固框、吊托支架刷油工程量,刷防锈漆两遍,耗用防锈漆2.5kg. 3.管理费、利润分别按人工55%、45%计。
问题
1.根据《建设工程工程量清单计价规范》的规定,编列出该工程的分部分项工程单项目,将相关内容填入答题纸表6.Ⅱ.3 中,并在答题纸表6.Ⅱ.3的下面列式计算通风管道的工程量。
2.假设矩形风管500×300的工程量为40m2时,依据《建设工程工程量清单计范》的规定,计算矩形风管500× 300的工程量清单综合单价,将相关数据内容填入答表6.Ⅱ。4中,并在答题纸表6.Ⅱ.4下面列式计算所列项目的工程量或耗用量。
(计算结果均保留两位小数)



1.矩形风管500×300的工程量计算式:
3+(4.6-0.6)+3×2+4×2+0.4×2 4-0.8×3-0.2=24(m)
24×(0.5+0.3)×2=38.40(m2)
2.渐缩风管500×300/250×200的工程量计算式:
6×2=12(m)
12×(0.5+0.3+0.25+0.2)=12×1.25=15(m2)
3.圆形风管φ250的工程量计算式:
3×(3+0.44)=3×3.44=10.32(m)
10.32×3.14×0.25=8.10(m2)
问题2(18分)

1.该项风管镀锌钢板耗用量的计算式:40÷10×11.38=45.52(m2)
2.该项风管检查孔工程量的计算式:5×4=20(kg)
3.该项风管法兰、加固框、吊托支架刷油工程量的计算式:
40÷10×(52÷1.04)=4×50=200(kg)
4.该项风管法兰、加固框、吊托支架刷油时,防锈漆耗用量的计算式:
200÷100×2.5=5(kg)
Ⅲ.电气安装工程
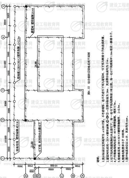
某综合楼防雷接地系统平面图如图6.Ⅲ所示。

表6.Ⅲ.1中数据为计算该防雷接地工程的相关费用:
表6.Ⅲ.1 防雷接地工程的相关费用

管理费和利润分别按人工费的55%和45%计算。
分部分项工程量清单的统一编码如表6.111.2所示。
表6.Ⅲ.2 分部分项工程清单统一编码
|
防雷及接地装置 |
电气调整试验 |
||
|
项目编码 |
项目名称 |
项目编码 |
项目名称 |
|
030209001 |
接地装置 |
030211006 |
母线 |
|
030209002 |
避雷装置 |
030211O07 |
避雷器、电容器 |
|
030209003 |
半导体少长针消雷装置 |
030211008 |
接地装置 |
问题
1.根据图示内容和《建设工程工程量清单计价规范》的规定,计算相关工程量和编制分部分项工程量清单计价表。将户外接地母线敷设 (以断接卡子1.8m处作为接地母线与引下线分界点)、引下线利用建筑物柱内主筋引下和避雷网敷设的工程量计算式填入表6.Ⅲ。3上方的相应 位置,并填写答题纸表6.Ⅲ。3“分部分项工程量清单计价表”中的第1~5项。
2.依据上述相关费用数据计算避雷装置项目的工程量清单综合单价,并分别填入答题纸表6.111.4“分部分项工程量清单综合单价计算 表”和答题纸表6.11.3“分部分项工程量清单计价表”中的第6、7项。(计算结果均保留两位小数)。
解析:
问题l(17分)
1.户外接地母线敷设工程量计算式:
[(5×8)+(3+2.5)+3+3+(0.7+1.8)×3]×(1+3.9%)=59×1.039=61.30(m)
2.引下线利用建筑物柱内主筋引下工程量计算式:
(21一1.8)×3=57.60(m)
3.避雷网敷设工程量计算式:
[(2.5+l0+2.5)×4+10+(10+8+14+8)×2+14×2+(24-21)×4]×(1+ 3.9%)=190×1.039=197.41(m)
